異なる屋根勾配、屋根種類の混在での納まり

屋根は建築物の外観印象を左右する、重要なデザイン箇所です。
そのような理由から、排水性などの機能性と、シンボリックな意匠を両立するために、屋根の途中で勾配を変えたり、ときには途中から屋根の種類を変える場合があります。
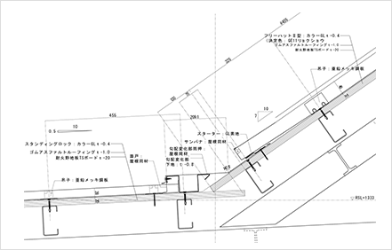
右記はそのような事例の建物で、屋根の上方は「たて葺きのラインを際立たせ」、下方では「防水性を重視した」低勾配で、屋根のラインも細かくしたいとの案件です。

異なる屋根の取り合いは、デザイン上の理由、機能上の理由から多くありますが、意外と納まりの具体的な情報が少なく、本案件でも
「瓦棒葺きとタテハゼ葺き、本体ピッチやキャップ山高、勾配も異なるので、納まりや雨仕舞が不明なので心配」
とご相談を頂き、最終的に左図の納まり図面となりました。
また、本建物は高所屋根のため、施工後のメンテナンスをいかに少なくするかも、必須条件でした。










