求められたデザイン

日本瓦がメインの起り(むくり)屋根の案件です。
設計士からのリクエストは、日本瓦と金属屋根の「取り合い」部を
可能な限りスッキリと納める事が求められた屋根納まりです。

屋根の「軒先」「ケラバ」においても、滑らかな曲線を活かしたデザインの実現が必須条件でした。
実例納まり
日本瓦と金属屋根の自然な「取り合い」

日本瓦がメインの起り(むくり)屋根の案件です。
設計士からのリクエストは、日本瓦と金属屋根の「取り合い」部を
可能な限りスッキリと納める事が求められた屋根納まりです。

屋根の「軒先」「ケラバ」においても、滑らかな曲線を活かしたデザインの実現が必須条件でした。

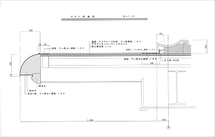
右図が何度かの校正を経ての最終納まり図面です。
日本瓦との取り合い部には、日本瓦の先端部内部に空間を設け、充分な水密用の雨仕舞いを施してあります。
また、内樋に関しては集水・排水性能を生かしつつ、できるだけ目立たない様に設置後の陰影も考慮し日本瓦の取り合い部の下方に横葺き金属屋根のラインと親和するように納められています。

軒先、ケラバの端部曲面の納めには、社寺建築でも多用される「防腐処理を施した心木」下地によって、滑らかで歪みのない意匠を実現しています。



スタイリッシュでシンプルなデザインの実現のために、各部の「滑らかさ」には細心の
注意をはかり丁寧な屋根施工を心がけました。
特にケラバ部からみるスムーズな曲線、
日本瓦からの自然な屋根取り合いと雨仕舞いの納めが見所の案件です。
自社での屋根材の開発力を活かし、
様々な屋根の納めに柔軟に対応しています。